viernes, 31 de diciembre de 2021

ZONA 4 - BARRIO CENTRO (parte 19)

 ZONA MICRO Y MACRO CENTRO

BARRIO CENTRO: Sector MICROCENTRO 2
 

 

BIENES NO PATRIMONIALES


En esta sección (análoga a los otros barrios presentados en el blog) mostramos aquellos bienes que no están incluidos en el Listado de Bienes Patrimoniales Municipales. Algunos de ellos presentan características similares a los “catalogados”, pero la gran mayoría de ellos solo representan exponentes de una determinada corriente estilística o simplemente forman parte del denominado “Patrimonio Modesto”. En las distintas secciones de bienes no patrimoniales hemos dividido a éstas en algunas categorías que suelen ser comunes a todos los barrios: “Casas de tipo Criollo”, “Chalets”, “Primeras Casas Modernas”, “Edificios” y “Bienes Escultóricos y/o Monumentos”. 

'
'En este mosaico podemos ver (arriba) el remate de un edificio de líneas náuticas y un remate en mansarda, típico de los edificios cercanos al complejo Casino-Hotel Provincial. En el centro el monumento a Ástor Piazzolla (en la Plaza del Milenio). Abajo: la curiosa fachada de un edificio sobre la Av. Luro con mínimos balcones y un típico edificio en torre frente a la costa. 

  

En este sector particular del Microcentro, las expresiones tipológicas de viviendas individuales (chalets y casas en general) quedaron reducidas a la mínima expresión. Siendo la tipología más común las viviendas colectivas representadas por edificios de departamentos.

Esto ocurrió gracias a una serie de eventos y procesos (políticos, económicos y sociales) que se sucedieron en pocos años. El contexto de modernización de la planta arquitectónica marplatense ya había comenzado de la mano de los gobiernos provincial y nacional cuando encararon la transformación de la Bahía Bristol y la urbanización del sector de balnearios de Playa Grande. Los otros aportes a este proceso de modernización fueron la “democratización” del balneario (ampliación de espectro de otras clases sociales que lograron acercarse a Mar del Plata), el desplazamiento de las clases sociales altas hacia el sur de la ciudad (Playa Grande, Divino Rostro, Alem, etc.) y la nueva legislación en cuanto al régimen de propiedad horizontal. Los edificios se convirtieron entonces en la expresión física de la modernidad. En este contexto, los edificios en torre, no solo reemplazaron a las casas y chalets sino también a los hoteles y edificios más antiguos.



“Casas de departamentos” o “Casas de renta”. Los proto-edificios de departamentos.

 

Las “Casas de renta” surgieron como consecuencia de la primera densificación urbana en la ciudad de Buenos Aires. En los lotes donde había una casa, comenzaron a construirse casas de varios pisos que tenían la particularidad de contener una vivienda independiente por piso y algunos servicios centralizados (agua, calefacción, portería, etc.). Originalmente estos departamentos estaban dirigidos a las clases altas. La construcción tenía un único dueño y los departamentos se alquilaban en forma independiente. Esto fue así hasta 1948-49 cuando surgió la Ley de Propiedad Horizontal que permitió la subdivisión de la propiedad. Con los años la cantidad de pisos fue en aumento llegando (en Buenos Aires) a más de 20 niveles y el término (muy arraigado en esa ciudad) no llegó a establecerse popularmente en Mar del Plata. Aquí se usó más la denominación “Edificio de renta” (quizás para diferenciarse, por ser una ciudad balnearia y tener un gran número de casas y chalets para la renta al turismo).

 

Por lo tanto, la “casa o edificio de renta” era toda construcción que tuviera al menos 2 unidades de viviendas independientes, usualmente divididas por planta y que compartían el mismo terreno y la mayoría de las veces también los servicios básicos. Por lo tanto había “Casas de renta” de 2 o más pisos. Independientemente de su tipología y/o corriente estilística, las casas de renta podían ser casas compactas, criollas, petit hotels, palacios, edificios de pabellones, edificios en altura y obviamente en Mar del Plata, también chalets.

 


Distintas edificaciones que fueron en su origen casas o edificios de renta. Luego de 1948, reconvertidas al nuevo régimen de propiedad horizontal, como edificios de departamentos o departamentos independientes luego de la subdivisión propietaria correspondiente.

 

En las 22 manzanas urbanizadas de este sector hemos encontrado un único chalet completo (hoy convertido en hotel) y un par de chalets sólo reconocibles en planta alta (toda su planta baja fue modificada para contener locales comerciales). La categoría de casas de tipo criollo (italianizantes) no está representada por ningún ejemplo puro. La otra categoría de casas individuales, las casas modernas de principio de siglo XX, está representada por tan solo 3 ejemplos.

Único chalet sobreviviente (completo) en esta zona del Microcentro marplatense. Hoy convertido en Hotel. Sobre la calle Santa Fe al 2100. Imágenes tomadas en 2011 y 2019 respectivamente.

.
Otro chalet (pero en planta alta) sobre calle Moreno al 2200. Imagen tomada en 2021.

Casa de estilo moderno con algunos elementos de la corriente que aquí se denominó estilo náutico: balcones curvos con barandas metálicas de sección circular y viseras de hormigón. (algunos autores catalogan este tipo de obras como un período tardío del Art Decó). Ubicada en Corrientes al 1500. Imagen tomada en 2020.

Otro ejemplo de la arquitectura moderna incipiente en Entre Ríos y San Martín. Imágenes tomadas en 2021.

Existen también casas híbridas o de transición de estilos, de concepción moderna, pero de sesgo más simple y líneas rectas, sin ornamentación, usualmente con locales comerciales en planta baja y dos o tres propiedades en planta alta. Algunas de ellas con frentes ladrilleros y paños de mampostería revocada. Existe un ejemplo en pie de una casa de rentas con elementos ornamentales  que se pueden asociar con el Art Decó (aunque de forma tímida).



Otros ejemplos de casas con los primeros rasgos  modernos, contrapuestos al pintoresquismo reinante, volúmenes simples, líneas rectas, cubiertas planas y sin ornamentación. Usualmente con locales comerciales en planta baja. Las primeras dos ubicadas sobre San Martín casi Entre Ríos. La última en la esquina de Corrientes y Bolívar. Imágenes tomadas en 2021.

Casa de rentas proyectada por el arquitecto Alejandro Virasoro, ubicada en Santa Fe y San Martín. Tímidos elementos ornamentales que se pueden asociar al Art Decó. Imágenes tomadas en 2020.

Detalle de la fachada por calle Santa Fe.


El resto de las viviendas del sector están contenidas en edificios de departamentos de pequeño, mediano o gran porte. Los hay de diversos estilos como los de corte clásico o ecléctico. Nacidos como edificios de renta, cuando aún no se había dictado el régimen de propiedad horizontal (1948). También hay edificios de estilo moderno y posmoderno y por supuesto aparecen casos híbridos.

Los edificios de escala pequeña o mediana (la mayoría de ellos contemporáneos a la década 1940) se encuentran mayormente encuadrados en 2 estilos: los clásicos y los modernos. Entre los primeros podemos citar a los edificios que se acercan al neoclásico y al academicismo (ambos de rasgos simplificados). Los últimos ubicados sobre la costa y acompañando la figura del Complejo Casino-Hotel Provincial, en altura y composición, rematados en mansardas (verdaderas o aparentes).

 

Ejemplos de remates en mansardas de los edificios que se encuentran en las inmediaciones del Complejo Casino – Hotel Provincial.

En la categoría de edificios modernos aparecen primero (cronológicamente) aquellos con rasgos “náuticos” y más tarde los de fachadas planas y líneas rectas. A partir de 1950 estará delineada la apariencia característica del skyline marplatense: edificios promediando los 12 pisos, implantados entre medianeras, generando fachadas corridas, con diversidad de materiales en sus frentes brindando una paleta de colores diversos. Luego llegará el turno de las torres más altas (la mayoría de ellas aprobadas fuera de la norma constructiva vigente, por medio de excepciones avaladas por las autoridades). Dentro de las opciones de la arquitectura moderna surgirán modelos racionalistas y las torres con basamento diferenciado. Finalmente, con la aparición de nuevos materiales en sus fachadas y las características plantas bajas libres, aparecen las torres de estilo moderno o posmoderno.

 

Este pequeño edificio de renta, sito en Corrientes al 1900, es un sobreviviente. Fue construido en 1945 por De Roni y Leonfati, con proyecto del arquitecto marplatense Auro Tiribelli, para Amadeo Raggi. Hoy alberga un hotel. La primera fotografía fue extraída de la revista Arquitectura Gráfica N°60 de 1946. La segunda fue tomada en 2020.

Otro edificio de renta, en este caso con rasgos italianizantes. Sufrió modificaciones en planta baja y el agregado de la última planta (posteriormente). Ubicado en la calle Santa Fe al 1900 (acera par). Imágenes tomadas en 2019.

Edificio en Santa Fe al 1800. Obra construida por José Rosso en 1946, de los arquitectos Rosendo R. Martínez y Humberto Arona. para el Sr. Luis Álvarez Domínguez. La primera fotografía fue extraída de la revista Arquitectura Gráfica N°60 de 1946. La segunda fue tomada en 2020.

Edificio del Hotel Miglierina, en Belgrano entre Santa Fe y Corrientes. Imagen extraída del libro Arq. Auro Tiribelli - Colección Arquitectura de Mar del Plata 1930 a 1970 - Tomo III - Arq. Alicia París. CAPBA IX (2018).

Edificio del Hotel Miglierina. Construido en 1944. Proyecto del arquitecto marplatense Auro Tiribelli. Ubicado en Belgrano al 2300. Imágenes de 2020. 

Edificio del “Gran Hotel Dorá”. Proyecto del arquitecto marplatense José V. Coll. Participó el ingeniero Raúl Dubecq. Fue construido en 1942 por Marino Lorenzutti e Hijos, para Guido Callegari. Primera imagen extraída de la Revista de Arquitectura – Año XXVIII, N°270, de junio de 1943. La segunda fue tomada en 2020.


Edificio del Hotel Riviera

El edificio del Hotel Riviera fue proyectado por el arquitecto Eric O. Weman y construido por la empresa Sartora e Hijos para la empresa DYSAR Hoteles Regionales Argentinos S.A. entre 1943 y 1945. DYSAR era un consorcio de empresarios formado por el empresario Rafael Díaz y la empresa Sartora e Hijos. Rafael Díaz tenía una mueblería famosa (Muebles Díaz) en la Av. 9 de Julio de la ciudad de Buenos Aires. El edificio donde se encontraba dicha mueblería tiene en su terraza un chalet de dos plantas que bien podría identificarse con los que se construían en Mar del Plata.

 

Chalet de Rafael Díaz en la ciudad de Buenos Aires, ubicado sobre el edificio que tiene frente por calle Sarmiento 1113. Construido en 1927. La primera fotografía fue extraída de la página https://www.cronista.com/apertura-negocio/real-estate/el-misterio-del-chalet-de-la-9-de-julio-40-anos-en-desuso-y-sus-duenos-se-niegan-a-venderlo/ y la segunda (tomada desde la avenida 9 de Julio) fue extraída de una nota del sitio del diario La Nación: https://www.lanacion.com.ar/sociedad/por-primera-vez-abrio-sus-puertas-el-mitico-chalet-de-la-9-de-julio-nid06092021/



El edificio (en la esquina de Belgrano y Buenos Aires) presenta 2 subsuelos, planta baja, entrepiso, 5 pisos y luego escalonadamente (generando terrazas) 2 bloques de 2 pisos y por último el piso 10. Volumétricamente son tres cuerpos paralelos unidos por la sección media, generando retiros sobre la calle Belgrano. Esto determinaba que todos los dormitorios recibían luz natural (y no de patios cerrados internos). 

Imágenes comparativas del edificio del Hotel Riviera. La primera fue extraída de la revista Nuestra Arquitectura N°190 de mayo de 1945. La segunda fue tomada en 2020.


En cuanto a sus fachadas, originalmente, la planta baja y el entrepiso estaban revestidos en piedra Mar del Plata. Los 4 pisos superiores presentaban paños de ladrillo visto con juntas hundidas y revoque imitación piedra color rosa pálido. Entre los pisos 4 y 5 aparece un balcón corrido en todo el perímetro expuesto. El resto de los pisos, retirados de la línea municipal, están revocados y pintados. Con los años, los revoques fueron repintados' y la planta baja cambió el revestimiento. 

Hotel Riviera. Imágenes extraídas de la revista Nuestra Arquitectura N°190 de mayo de 1945. Acceso por calle Belgrano en estado original.

La entrada principal (sobre Belgrano) estaba jerarquizada por una escalinata de piedra martelinada, una puerta central giratoria y puertas laterales enmarcadas por mochetas de piedra. Todo el acceso estaba bajo una losa ubicada en forma levemente oblícua que hacía las veces de refugio y por sobre ella se disponía del cartel con el nombre del hotel.

 


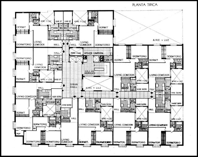
Planos de plantas del edificio del Hotel Riviera. Extraídos de la revista Nuestra Arquitectura N°190 de mayo de 1945.


El hotel había fue construido con los más altos estándares de calidad para el momento. Contaba con 250 habitaciones con baño e incluía departamentos independientes, servicio de calefacción en lugares comunes y habitaciones, confitería-bar, comedor con pista de baile, lobby, salón de bridge y salones de esparcimiento. 

Interiores originales del Hotel Riviera. En la primera de ellas puede verse el hall de recepción o lobby. En la segunda, el salón comedor y en primer plano la pista de baile. Imágenes extraídas de la revista Nuestra Arquitectura N°190 de mayo de 1945.

Folleto de época promocionando los servicios que brindaba el hotel. Extraído de https://diarioanticipos.com/2020/10/29/la-casita-de-9-de-julio-muebles-diaz-radio-rivadavia-y-el-hotel-rivera/
Fachada del Hotel Riviera sobre calle Belgrano. Imagen tomada en 2020.


Edificio Manuel Guerrero

 

Edificio de rentas ubicado en la esquina de Rivadavia y Buenos Aires fue proyectado por el estudio Sánchez, Lagos y de la Torre entre 1943 y 1945. El estudio fue catalogado por historiadores como uno de los más importantes de la primera mitad del siglo XX. Si bien comenzó realizando obras academicistas, luego experimentó ejemplos con el art decó y corrientes modernas como el racionalismo. Se conformaba por el ingeniero Gregorio Sánchez y los arquitectos Ernesto Lagos y Luis María de la Torre Campos.

Entre sus obras más aclamadas están: el edificio Kavanagh, la casa matriz del Banco de la Provincia de Buenos Aires, la sede social del Automóvil Club Argentino (ACA) y la sede del Ministerio de Industria y Comercio (todas en la ciudad de Buenos Aires).

Obras del estudio Sánchez, Lagos y de la Torre en la ciudad de Buenos Aires. 1) Edificio Kavanagh (https://www.modernabuenosaires.org/obras/20s-a-70s/kavanagh) , 2) Sede central del Banco de la Provincia de Buenos Aires (https://es.wikipedia.org/wiki/Banco_de_la_Provincia_de_Buenos_Aires#/media/Archivo:Casa_Central_BPBA.jpg) , 3) Edificio Sede Social ACA (https://es.wikipedia.org/wiki/Archivo:ACA_-_Sede_Central.jpg) y 4) Edificio del Ministerio de Industria y Comercio (https://www.skyscrapercity.com/threads/sudam%C3%89rica-obra-del-estudio-s%C3%A1nchez-lagos-y-de-la-torre.1885502/

Este edificio con planta en “L”, se desarrolla en una planta baja que recorre todo el perímetro de la línea municipal (de uso comercial), una planta alta siguiendo el contorno de la anterior pero con un pequeño retiro. Este retiro genera una terraza corrida. A partir de aquí, al volumen principal se le extrae un volumen cuadrado en esquina, generando una terraza de un cuarto de círculo en la esquina. Le siguen 4 pisos y un nivel de remate en mansarda. 

Edificio Manuel Guerrero. Imágenes extraídas de la revista “Nuestra Arquitectura N°201 de abril de 1946.
Edificio Manuel Guerrero. Imágenes tomadas en 2020.

En cuanto al tratamiento de las fachadas se resuelven las primeras dos plantas con piedra martelinada, luego 4 pisos de ladrillo visto con detalles de aristas, contramarcos y cornisas en revoque blanco. En el primero de estos niveles, se presentan puerta-ventanas, que en forma alternada, se realzan con pequeños balcones con ménsulas molduradas y contramarcos que terminan en tímpanos triangulares y curvos. El ultimo nivel es una mansarda, como muchos de los edificios alrededor del Complejo Casino-Hotel Provincial.

Plano de planta de un piso tipo (del 2 al 5, identificados exteriormente por sus frentes de ladrillo). Extraído de la revista “Nuestra Arquitectura N°201 de abril de 1946.

Edificio Manuel Guerrero, fachada sobre Rivadavia. Aquí pueden verse los realces ornamentales de las puerta-ventanas del primer nivel con tratamiento de ladrillo visto. Imagen tomada en 2020.


 Edificio ex Hotel Savoy – Hoy Hotel Residencia Marítima

 

El edificio del Hotel Residencia Marítima, ubicado en la Av. Patricio Peralta Ramos entre Lamadrid y Las Heras, fue proyectado en 1940 por el arquitecto Héctor Carlos Morixe. Originalmente albergó al Gran Hotel Savoy, cuyos dueños fueron José y Lucio Cordeu. El edificio se mimetiza, como muchos edificios de la zona, con el Complejo Casino-Hotel Provincial. Presenta carácter académico, respetando la composición armónica de la arquitectura clásica. 

Edificio del Gran Hotel Savoy, en 1943. Imagen extraída de la Revista de Arquitectura, Año XXVIII N°270, de junio de 1943. La segunda imagen, tomada en 2021, muestra el cuerpo central del edificio, ahora Hotel Residencia Marítima “Patricio Datarmini”.

 

El tratamiento de fachadas se desarrolla en forma diferenciada, la planta baja y el primer nivel tienen recubrimiento en piedra martelinada, en piezas medianas, regulares y dispuestas en aparejo de juntas contínuas. Los pisos altos presentan ladrillo visto (aparente) con realce de contramarcos con revoque blanco. El remate se convierte en un nivel de mansarda con buhardilla de tipo academicista francés, materializadas en pizarras inglesas. El piso 8, retirado (no puede apreciarse desde el nivel de la vereda) contiene habitaciones de servicio, salas de máquinas y azotea. 

Porche de acceso al edificio Hotel Residencia Marítima, en 2021.

Mientras que las dos primeras plantas abarcan la totalidad del terreno, a partir del segundo piso presenta 2 pronunciados retiros laterales, respecto de la línea municipal, generándose 2 terrazas rectangulares. Esto se debió a la búsqueda de ubicar una mayor cantidad de habitaciones sobre el frente y abiertas a patios internos, ubicados sobre las medianeras. Las plantas del segundo al sexto piso son idénticas. El nivel 7 presenta un retiro, formando terrazas particulares para dos departamentos independientes. 




Planos de plantas extraídos de la Revista de Arquitectura, Año XXVIII N°270, de junio de 1943.


La recepción (en planta baja) se compone de un porche para descenso de pasajeros y se ubicaba originalmente la portería, la administración y la gerencia. Se completaba con un salón de recepción y bar. En planta alta, de doble altura, se ubicaban salones comedores y cocinas (con accesos a la terraza frontal), y en un entrepiso dependencias del personal y comedor de niños.

 

Gran Hotel Savoy: Salón comedor (en la planta alta) y escalera principal con pisos de granito y acompañando el hueco de la escalera un ventanal tipo Glasbeton. El Glasbeton fue un material patentado en Dinamarca, conformado por bloques de vidrio en un entramado de hormigón armado aligerado. Un material que resuelve aislamiento térmico, cerramiento y estructura de muros exteriores e interiores. Este material también fue llamado vidrio estructural. Las imágenes fueron extraídas de la Revista de Arquitectura, Año XXVIII N°270, de junio de 1943.


El edificio se encuentra en óptimas condiciones y en 2019 fue premiado con el Diploma al Aporte a la Identidad Marplatense, premio que la Defensoría del Pueblo de la ciudad de Mar del Plata otorga a los dueños de propiedades que no se encuentran en el Listado de Bienes Patrimoniales y demuestran preocupación por el mantenimiento y preservación de dichas propiedades. 

Imagen general del edificio Residencia Marítima ubicado en Av. Patricio Peralta Ramos 2543. Tomada en 2019.


Edificio Colón

Siguiendo en estos cánones de arquitectura clásica, en la esquina de Colón y Buenos Aires se levanta el Edificio Colón. Obra del arquitecto Valentín Meyer Brodsky (mismo autor del Palacio Árabe). El edificio fue construido en la década de 1940 por la empresa Arturo Lemmi y Hnos. Se desarrolla en planta baja y 12 niveles (el último con mansarda). En una fotografía de la construcción del edificio Palacio Eden (su vecino) puede apreciarse este edificio con 7 plantas. Obviamente con los años fue ampliándose hasta llegar a los actuales 12 pisos y posteriormente sufrió el agregado de un remate de doble altura sobre la azotea, con retiros y en otro estilo. 

Edificio Colón. Imágenes tomadas en 2020. Fachada sobre Colón y vista general.

Acceso del edificio Colón. Donde se puede apreciar el nombre del edificio y de su autor. (2020)


Las fachadas presentan un zócalo de media altura de piedra martelinada. Este mismo tratamiento aparece en el acceso pero en toda la altura de esa planta. El resto de la planta baja y el primer nivel se resuelve con mampostería revocada. Caracteriza al primer piso que todas sus aberturas tienen arcos rebajados y barandillas de material premoldeado con registros geométricos calados. A partir del tercer piso aparecen diferenciaciones verticales entre paños de ladrillo visto y revoques. La fachada sobre Colón, en posición central, presenta retiros que forman pequeñas terrazas semicubiertas y por calle Buenos Aires, aparecen balcones con un terminal curvo y otro recto.

Edificio Colón. Fachada por calle Buenos Aires y detalles de la parte superior (por Av. Colón). Imágenes tomadas en 2020.

Edificio Colón. Detalle en la ochava  de los pisos 10, 11 y 12. La segunda imagen es un detalle de lo que se ve del remate superior (en azotea) desde el nivel de calle en Plaza Colón. (Imágenes de 2020 y 2021 respectivamente).

Edificio Colón. Fachada sobre la Av. Colón. Imagen tomada en 2008.


El piso 11 muestra un balconeo perimetral corrido y el último piso está rematado como mansarda, materializada con pizarra negra. En la azotea aparece un volumen independiente, de doble altura, retirado de todos sus frentes.

Vista general del Edificio Colón, tomada desde la Plaza Colón. Imagen de 2008.

Otra imagen en detalle del remate del Edificio Colón (Imagen de 2020).


Otros Edificios

 

Contemporáneos a los anteriormente descriptos, podemos citar, al edificio del Hotel Garden en Moreno y Santa Fe y en clave un poco más pintoresca al edificio anexo al Hotel Antártida (en Entre Ríos y Luro) y al edificio del Hotel Guerrero en la Diagonal Alberdi y Corrientes. 

Hotel Garden. Proyectado por Auro Tiribelli en 1939. La primera imagen es una postal, extraída del blog Fotos de Familia, del diario La Capital de Mar del Plata. Aportada por José Alberto Lago. La segunda imagen fue tomada en 2020.

Hotel Garden. Posteriormente, el ala sobre la calle Moreno sufrió el agregado de dos nuevas plantas, pero su núcleo original se mantiene fiel a como fue concebido. Imágenes de 2020.

Contemporáneo a su edificio vecino, el Hotel Antártida, este edificio recurre a elementos pintoresquista para diferenciarse de todo lo construido alrededor del Casino, aunque mantiene la presencia de mansardas. Suma el tratamiento en piedra con aparejo irregular en sus dos primeras plantas, tejadillos sobre el segundo nivel y balcones con barandas de madera.

El Hotel Guerrero, se construyó a mediados de la década de 1940 y se mantiene casi sin modificaciones. Contrastando ambas fotografías podemos ver que la modificación que se realizó fue reconvertir los balcones en ampliaciones de las habitaciones. La primera imagen (fotografía publicitaria del hotel) fue extraída del blog Fotos de Familia, aportada por Julián Mendozzi. La segunda fue tomada en 2020.

 

Ya con una estética un poco más moderna, sin ornamentaciones y con el uso de otros materiales como el acero inoxidable en las puertas y marcos del acceso, en 1949, los arquitectos Hiilario L. Lorenzutti y Américo M. Cervini proyectaron un edificio de renta en la esquina de Rivadavia y Corrientes.

Edificio Luis Di Pasqua. Imágenes extraídas de la Revista de Arquitectura XXXV, N°355 de julio de 1950. Vista general y fachada por Belgrano.

Edificio Luis Di Pasqua. Imágenes extraídas de la Revista de Arquitectura XXXV, N°355 de julio de 1950. En la primera fotografía se muestra el acceso al vestíbulo, con las puertas de acero inoxidable. La segunda imagen corresponde al hall principal y al fondo el hall de ascensores.


El edificio se inauguró en 1950 y se lo denominó Luis Di Pasqua, fue construido por la empresa de Marino Lorenzutti e Hijos. Este edificio se caracteriza por contener en toda su planta baja una batería de locales comerciales. Se desarrolla en planta baja, 5 pisos y azotea (con sala de máquinas y servicios). En las plantas superiores de distribuyen varios departamentos, la mayoría de ellos con vistas al exterior y los internos dan a un patio sobre el ángulo opuesto a la ochava. A su vez todos los departamentos dan a pequeños patios o vacíos de aire y luz. El acceso, por calle Corrientes, tiene un vestíbulo, un gran hall de recepción (ambos espacios tenían pisos y muros de mármol) y el hall de ascensores, originalmente revestido en guatambú. 

Edificio Luis Di Pasqua. Plano de planta baja. Extraído de la Revista de Arquitectura XXXV, N°355 de julio de 1950. Áreas de acceso común a los departamentos de los pisos superiores y negocios en todo el perímetro.

Edificio Luis Di Pasqua. Plano de una planta típica. Extraído de la Revista de Arquitectura XXXV, N°355 de julio de 1950. 


Las fachadas son de ladrillo visto y el quinto piso está diferenciado por un balcón corrido perimetral. 


Edificio Luis Di Pasqua en la actualidad. Imagen tomada en 2021.


Los edificios de renta y la arquitectura moderna

 

Durante estas décadas de 1930 y 1940, junto a las estéticas neoclásicas y academicistas y las pintorescas, convivirán distintas expresiones de la arquitectura moderna, aquellas que tenían como premisa la funcionalidad de los espacios por sobre la estética y la forma, de esta manera se simplifican las fachadas a nivel ornamental y se prefiere el uso de materiales industriales. En Mar del Plata, una de las primeras estéticas modernas en consolidarse fue la que estaba asociada a lo que aquí se denominó estilo náutico. Algunos autores definen a este estilo como una fase tardía del art Decó. Posteriormente llegó el racionalismo o International Style y por último la arquitectura posmoderna. Por supuesto que en el medio aparecen obras que son mestizas o hibridaciones entre las distintas corrientes.

Los primeros ejemplos de arquitectura moderna asociada a edificaciones en altura, como señalamos, serán cercanos al estilo náutico, esto es, muros blancos y lisos, ventanas corridas, balcones curvos con barandas lineales, ojos de buey y ochavas planas. En este estilo surgirán primero algunos hoteles como el Nuevo Ostende, la parte nueva del Hotel Royal y el City. Pero también se construirán edificios de renta en este estilo, pero principalmente casas individuales que usualmente contenían en planta baja locales para negocios, estudios o consultorios médicos. 

Ejemplos de edificios de renta y hoteles en clave moderna. 1) Córdoba al 1800, 2) Luro e Independencia, 3) Santiago del Estero al 1700, 4) Hotel Nuevo Ostende en Yrigoyen y Rivadavia. Las imágenes fueron tomadas en 2020 y 2021.

Edificios de los hoteles City y Royal (demolido). Las imágenes fueron tomadas en 2021 y 2006, respectivamente).

 

Ejemplos de edificios en los incipientes estilos modernos (algunos de ellos son evidentemente híbridos): 

Hotel Avenida del Mar del gremio SMATA, en Av. Luro al 2200. Imágenes de 2020 y 2021.

Hotel Astro, en Bolívar al 2300. Imagen tomada en 2021.

Edificio Seymon, construido para Sendra y Montagut, por Sáenz y Marco en 1942, con proyecto del arquitecto marplatense José V. Coll. Situado en Corrientes y San Martín. La primera imagen fue extraída de la Revista de Arquitectura, Año XXVII, N°257 de mayo de 1942. La segunda fue tomada en 2021.

En la esquina de Moreno y Entre Ríos tenemos estos dos ejemplos híbridos. Imágenes de 2021.

Otros dos ejemplos híbridos: Hotel Antranik en la esquina de Belgrano y Entre Ríos y el Hotel Juan Domingo Perón del sindicato del Sindicato de Empleados Textiles y Afines (SETIA), en Corrientes y Moreno. Imágenes de 2020 y 2021, respectivamente.

Hotel Argentino, en la esquina de Belgrano y Entre Ríos. Imagen tomada en 2020.


A partir de la década de 1950 se afianza el movimiento moderno y comienzan a aparecer las torres con basamento (y galerías comerciales) y los edificios de propiedad horizontal en torres que ganan altura. Ambos ejemplos se dan en el microcentro marplatense.

 

Los edificios con Galerías Comerciales

 

Como ejemplos de galerías comerciales asociadas a edificios en torre (en orden cronológico) aparecen: la Galería San Martín, Galería Sacoa, Galería Eves, Galería Rivadavia, Galería Florida, Galería de las Américas y ya en la década de 1970 la inacabada Galería del Bristol Center y la Galería Lafayette. A partir de aquí habrá “nuevos vientos” en cuanto a la forma de emprender conjuntos comerciales, pasarán varios años hasta la aparición de los “Shopping Centers”. 

La Galería San Martín se originó por la unión de los basamentos de dos edificios que se construyeron simultáneamente. Originalmente la galería fue proyectada como una simple “L” con entrada por San Martín y salida por Santa Fe. A este recorrido original se le sumó el acceso hacia la Avenida Luro. Los edificios (Residencia San Martín y Residencia Luro) se desarrollan en 10 plantas altas con cerca de 300 departamentos en total.

 

Edificio Pasaje Sacoa en San Martín al 2300 (entre Corrientes y Santa Fe). La primera fotografía muestra la fachada de uno de los edificios, sobre la calle San Martín. La segunda imagen es la fachada del edificio sobre la calle Rivadavia. Imágenes de 2021.

El Pasaje Sacoa (perteneciente a la firma SACOA, Sociedad Anónima Constructora de Obras y Afines) fue un proyecto de 1949 de la firma Cofimar SA, quién vendió el terreno y el comienzo de obra a la primera firma. Dirigió el proyecto el ingeniero Julio Rateriy y fue finalmente construida entre 1949 y 1952 por Domingo Fiorentini y Hnos. El proyecto se desarrolla en una estructura de 11 plantas y un subsuelo con un centro comercial en planta baja y primer piso y 5 torres de 9 pisos por sobre el basamento. El terreno tiene frentes sobre las calles San Martín y Rivadavia. El edificio con frente sobre Rivadavia principalmente contiene oficinas, el resto de las torres albergan más de 180 departamentos. Originalmente contemplaba un sector de entretenimiento y galería comercial, alquiler de oficinas y departamentos. 

Pasaje Sacoa. Vistas del primer piso del sector comercial. Hoy, casi todos los locales son utilizados como depósitos. En este nivel se encuentran los distintos accesos a las torres. Imágenes de 2021.

El sector comercial de dos plantas tiene recorridos sobrepuestos, aunque sin conexión entre ambas. Los dos niveles tienen accesos desde el nivel vereda. Los accesos a los cuerpos de vivienda de los diferentes edificios se encuentran en el primer piso. Originalmente fue pensado para contener más de 50 locales en planta baja, algunos menos en plata alta y un subsuelo con actividades de esparcimiento (confitería y cine-teatro). Los accesos a la galería comercial se presentan a través de sendas logias, con acceso central a la planta baja y accesos por escaleras laterales a planta alta. Evidentemente esta tipología comercial se encuentra en franco retroceso (proceso que comenzó probablemente en la década de 1990, con la aparición de los Shopping Centers). Como ejemplo de este proceso podemos asegurar que hoy en día, los locales del primer piso sólo se utilizan como depósitos. 

Pasaje Sacoa. La primera imagen es de la galería que se ubica a nivel planta baja. La segunda imagen es de una de las escaleras de acceso al nivel donde se encuentran los vestíbulos de entrada a las torres. Imágenes de 2021.

La otra galería comercial de este sector, de concepción más moderna, con recorridos que entrelazan subniveles es la Galería EVES. Originalmente era un edificio de 9 pisos con más de 230 departamentos y un basamento comercial que contenía en su interior un gran hall de doble altura y espacios laterales en medios niveles generando balconeos sobre el espacio central. Este complejo fue proyectado por los ingenieros Abulafia y Alderoqui en la segunda mitad de la década de 1950. Poco después se sumó otro complejo de dos torres de 10 pisos y unos 180 departamentos más, conectando a nivel del basamento con una salida hacia la calle Rivadavia y aportando también el uso de medios niveles, conformando una galería pasante de recorridos múltiples. Esta galería, hoy también sufre el cierre paulatino de los locales comerciales.

 

Edificios de la Galería Eves. El primero, con frente sobre la calle San Martín (entre Córdoba y Santiago del Estero). La segunda imagen muestra a otro de los edificios por calle Rivadavia. Imágenes de 2021.

Acceso a uno de los edificios sobre la calle Rivadavia. En realidad esta parte de la Galería Eves es un hall común a los dos edificios situados hacia Rivadavia. Notar decoraciones modernas típicas de esta época. Imagen de 2021.

Otros dos ejemplos de edificios con galerías comerciales son el Edificio y Galería Rivadavia (1957-1960) y el Edificio Eiffel y Galería de las Américas (1958-1962), quizás los máximos exponentes de esta tipología. Ambas obras fueron proyectadas por el arquitecto catalán Antonio Bonet, quien también proyectó la Galería Central (en Luro e Independencia) pero la torre no llegó a construirse. Estos ejemplos fueron descriptos en la sección Microcentro Sector 1 (Parte 6).

 

Edificios de las galerías Rivadavia (Rivadavia y San Luis) y de las Américas (Córdoba y San Martín). Imágenes de 2019 y 2021, respectivamente.

La Galería Florida es un complejo de dos torres sobre un basamento, implantado sobre un lote en esquina. La obra fue construida alrededor de 1960, por la empresa Delco, cuyo fundador fue Demetrio Elíades, quien incluso vivió en la torre más alta. Ambas torres son de perímetro libre, una de 13 pisos con 39 departamentos y portería, ubicada sobre calle Corrientes y la principal de 25 pisos y 150 departamentos, situada en la esquina de Corrientes y San Martín. Las dos torres se separan del basamento que contiene la galería comercial, por medio de una batería de columnas. Dentro del basamento comercial se encuentran los accesos a ambos edificios. El basamento, de dos niveles, está coronado perimetralmente por una marquesina de hormigón, decorada con un friso policromado, de líneas modernas donde aparecen líneas curvas y rectas y figuras irregulares premoldeadas, como sebrerrelieves.

 

Imágenes del Complejo Galería Florida. Torre  sobre la esquina de Corrientes y San Martín. Imágenes de 2021.

Galería Florida. Primera imagen: friso de la marquesina de hormigón. La segunda imagen es de 2008 y fue tomada desde la cuadra anterior (entre Corrientes y Entre Ríos).

El último de los emprendimientos completos de este tipo fue el ejecutado en la esquina de San Luis y San Martín, el edificio y Galería Lafayette, a principios de la década de 1970, que trajo como novedad un núcleo central de locales comerciales con circulaciones perimetrales con vistas al exterior y la utilización de rampas.

 

Dos imágenes del edificio de la Galería Lafayette (San Luís y San Martín). La primera fue tomada en 2008 (aún se encontraba la vieja fuente de la peatonal). La segunda fotografía es de 2021.

 

Los edificios en torre


Frente a la Plaza Colón en un terreno en esquina (Buenos Aires y Bolívar) se encuentra uno de los primeros edificios en torre de altura considerable de la ciudad de Mar del Plata. El Palacio Edén es un conjunto de 2 placas de distintas alturas dispuestas en forma de “L” sobre las líneas municipales de ambas calles, ubicadas a su vez sobre una edificación plana común, despegada del suelo por pilotis, que contiene una planta baja parcial y un entrepiso que comunica ambos edificios. La planta baja, sobre calle Bolívar, contiene locales comerciales. El conjunto se completa con 2 subsuelos con cocheras. El acceso a las cocheras se encuentra sobre la medianera, por calle Buenos Aires.

 

Palacio Edén. En la primera fotografía puede observarse su construcción. Imagen perteneciente al Archivo Annemarie Heinrich, de la Biblioteca Británica. Aportada por Cristina Corsini al blog del diario La Capital “Fotos de Familia”. La segunda fotografía fue extraída de la revista Nuestra Arquitectura N°427 de agosto de 1965. 

Palacio Edén. Imagen de 2021, tomada desde el centro de la PLaza Colón.

Esta obra fue construida por la empresa Delco, con proyecto del arquitecto Juan Antonio Dompé (que como veremos más adelante, fue el autor de las torres más altas de Mar del Plata: Palacio Cosmos y Edificio Demetrio Elíades, conocido popularmente como “Edificio Havanna”, ambos en el barrio Loma de Stella Maris).

Dos de las obras del arquitecto Juan Antonio Dompé y construidos por la empresa DELCO. Palacio Cosmos, en Sarmiento y Colón y el edificio Demetrio Elíades, conocido popularmente como Edificio Havanna. Imágenes de 2021.


El Palacio Edén comenzó su construcción en 1958 y se inauguró en 1962. Con una superficie cubierta de 20 000 m2, una superficie de planta de 820 m2 y una altura total de 88 metros, el conjunto presenta 6 departamentos por piso en la torre menor (de 18 pisos) y 11 departamentos por piso en el torre más grande, de 25 niveles (sobre la calle Buenos Aires), totalizando más de 380 unidades habitacionales. 

Palacio Edén. La primera imagen fue extraída de la revista SUMMA (Revista de arquitectura, tecnología y diseño), N°33 de 1971. La segunda fue tomada en 2008.

Palacio Edén. Imagen de 2021.

Los muros son de hormigón armado, lo que supuso la eliminación de columnas en las torres. Las fachadas se presentan como una sucesión de planos opacos alternados con ventanas y puertas ventanas. Esta alternancia horizontal, a su vez, se manifiesta verticalmente, resultando en una suerte de trama en damero rectangular desplazado. 

Palacio Edén. Detalle de los distintos planos opacos que se van alternando con puertas y puertas-ventanas. Imagen de 2020.

Palacio Edén. Imágenes de 2020 y 2019, respectivamente.

El acceso se encuentra sobre calle Bolívar y en el vestíbulo de entrada se destacan los pisos formados por “rodajas” de algarrobo, pulidas y unidas por una aleación de plomo. El hall central también presenta obras del artista Ponciano Cárdenas Canedo, una decoración cerámica (tamaño: 7m x 2,4 m) y 2 esgrafiados (uno de 11m x 2,4 m y otro de 6m x 2,4m). También hay otro esgrafiado del mismo autor en el nivel entrepiso (de 3m x 2m).

 

Palacio Edén. Detalle del hall de plata baja (imagen extraída del sitio: https://es.hotels.com/ ). La segunda fotografía es de 2021.

La Plaza Colón, resguardada por el skyline característico de Mar del Plata, destacándose el Palacio Edén. Imagen tomada en 2021.


Complejo Bristol Center: manzana rodeada por las calles Buenos Aires, San Martín, Entre Ríos y Rivadavia

 

Esta manzana posee una rica historia ya que fue la sede del núcleo de salones del antiguo Hotel Bristol. El hotel había sido inaugurado en 1888 y llegó a abarcar tres manzanas. En 1944, el hotel cerró sus puertas. Dos de las manzanas (que contenían los distintos edificios para las más de 500 habitaciones) fueron demolidas, pero esta manzana que estamos describiendo, se transformó en una galería comercial que incluía salas de espectáculos y locales comerciales (internos y externos). La Galería Bristol finalmente se subastó en 1964. El edificio ya estaba en un estado muy deteriorado y hacia 1969 comenzó su demolición.

 

Dos imágenes de la misma manzana. La primera imagen fue aportada por Ignacio Repetto (cuya fuente original probablemente sea del Archivo Histórico Municipal Roberto T. Barili) y muestra al Hotel Bristol en sus primeros años (c. 1920). La segunda fotografía muestra a la Galería Bristol hacia 1965, poco antes de ser demolida. Imagen enviada por Roque Martínez al blog “Fotos de Familia”, del diario La Capital de Mar del Plata.

La idea del Complejo Bristol Center nació en la década de 1960 con la presentación de un anteproyecto (publicado en el Diario La Capital de Mar del Plata), en el que se estipulaba la construcción de un gran hotel sobre la calle Buenos Aires con forma de media luna, y una torre de 30 pisos. Ambos edificios sobre un basamento comercial de dos plantas. El proyecto preveía un sótano para estacionamientos con planta de manzana completa. El complejo incluiría 2 cines, salas de conferencias, un teatro y restaurante. El proyecto fue autorizado durante la comisionatura de Pedro Martí Garro (1966-71).

Dos imágenes de los inicios de la construcción del complejo Bristol Center. Amas enviadas por Roque Martínez al blog del diario La Capital: “Fotos de Familia”.

Imagen de una publicidad de la empresa inmobiliaria Di Tullio, publicada en el diario “El Atlántico” en 1969. La construcción fue iniciada por la empresa Nicolás Dazeo S.A., antes de que cambiara de manos. Nótese que el proyecto era distinto a lo que luego terminó construyéndose, (uno de los varios proyectos). La imagen fue extraída de uno de los foros del sitio https://www.skyscrapercity.com/ (el foro online internacional dedicado a arquitectura y urbanismo).


En 1969, el proyecto pasó a manos de las firmas Fundar S.A. y Construir S.A. (ambas pertenecientes al empresario David Graiver), que lo cambiaron por completo. El nuevo proyecto, de características modernas, contemplaba un complejo de 110000 m2, con tres torres, una central de 39 pisos y dos laterales de 30 pisos, sobre un basamento de 6 niveles (2 subniveles, la planta baja y tres pisos altos) que cubrían la totalidad de la manzana. Los subsuelos contenían cocheras con capacidad de 520 automóviles y el acceso a las mismas se encontraba sobre la calle Entre Ríos. La galería comercial ocupaba 2 niveles y medio del basamento. El último nivel del basamento contenía el sector cultural: 2 salas de espectáculos de 1100 localidades, salas de conferencias, salones de exposición, restaurantes y confiterías. La terraza de este volumen contendría 2 pileta de natación (para adultos y niños), solárium, vestuarios y gimnasio, para los usuarios de las torres. Despegadas de la terraza se levantarían las torres. La central ubicada sobre 5 pórticos de hormigón, con separación de 23 metros entre ejes. Esta torre iba a contener 663 departamentos. Las torres laterales contendrían 300 departamentos cada una. Un proyecto que evidentemente, teniendo en cuenta las regulaciones de construcción existentes, no podría haberse construido sino por excepción. Este proyecto fue muy criticado y generó el primer quiebre en la opinión pública y política respecto de estas construcciones, porque de concretarse, generaría un gran cono de sombras sobre las playas céntricas a tempranas horas. Finalmente el proyecto (con algunos cambios) fue aprobado.

 

Otras dos imágenes de los distintos proyectos y modificaciones que fueron surgiendo con el transcurso de los años y las distintas administraciones. La primera imagen, extraída de la Guía Turística Mar del Plata 2000. La segunda imagen fue extraída de la revista Summa N°33 del año 1971. Ninguna de estas imágenes terminaría por condensar en el proyecto finalmente construido.

Dos imágenes comparativas del Bristol Center. El mismo frente de manzana en 2004 y 2021. 

Con la demolición parcial del núcleo de la Galería Bristol se comenzó la construcción de la torre central en 1969.Más tarde siguieron las demoliciones laterales, que dieron lugar a la paulatina ocupación de la manzana. Sin embargo el proceso de construcción comenzó a tener demoras y hacia 1975 se desencadenó un proceso inflacionario que golpeó la continuación del emprendimiento. Pero definitivamente un hecho posterior sería el comienzo del fracaso en completar la obra. En algún momento también se cambió (por autores desconocidos) la fisonomía externa del conjunto, desviándose estéticamente del proyecto. 

Bristol Center - Torre “B” (o central). Imágenes tomadas en 2008.

'
Bristol Center - Torre “A” (Bristol Condominio Apart Hotel). Imágenes tomadas en 2008 y 2019, respectivamente.

 

En 1976, Graiver falleció en un accidente aéreo en México y esto trajo aparejado la caída de su imperio. Este empresario, vinculado con las altas esferas del poder político, con supuestas relaciones con la agrupación Montoneros, dueño de varios bancos e infinidad de empresas en varios países alrededor del mundo, llegó a contar con un patrimonio valuado en casi 300 millones de dólares. Existen autores que manejan varias “teorías” sobre su muerte, desde la conocida muerte accidental, pasando por muerte “no accidental” y hasta hubo autores que sugirieron una “falsa muerte”.


En definitiva, las obras se retrasaron aún más por las acciones judiciales que comenzaron a realizar los compradores de los departamentos y sumado a la expropiación de los bienes de Graiver por el gobierno militar, determinó el cese de actividades en 1977, quedando trunco el proyecto, hasta la actualidad.

Bristol Center – Primera imagen: Torra “A”, tomada desde la esquina de Rivadavia y Entre Ríos (2019). La segunda fotografía es de 2008 y muestra el basamento sin terminar (por calle Rivadavia).

 

Finalmente el Complejo Bristol Center (basado en un tercer proyecto, modificado por restricciones de altura) fue concensuado para tener un basamento formado por 3 plantas (hoy cerrado e incompleto), 3 subsuelos para cocheras y 3 torres. En estas negociaciones el municipio se aseguró un auditorio y una sala de exposiciones. Aún faltaba la aprobación en el Concejo Deliberante. Dicha sesión, de casi 6 horas, fue un escándalo, hubo disparos y peleas dentro del recinto. Finalmente en la madrugada del 6 de diciembre de 1974 y por desempate del presidente del cuerpo se aprobó la ordenanza que daba el visto bueno a la construcción del complejo. La tercera torre nunca se construyó.

 

En 2004, hubo algunas novedades, cuando el consorcio de propietarios inició acciones legales sobre la empresa Fundar S.A. Esperando un fallo favorable, se suponía la terminación de la tercera torre con el dinero de la indemnización. Finalmente en 2015 la justicia falló a favor de la empresa y de esta manera se cerró otro capítulo, del inconcluso Bristol Center. Ha habido intentos (todos frustados) para mejorar el entorno visual del complejo, como por ejemplo cuando se propuso unificar las fachadas del basamento con una marquesina totalizadora. 

Complejo Bristol Center. Imagen de 2008.


Hoy el complejo se compone de la Torre ("B") Bristol Center de 24 pisos y 323 departamentos y la torre ("A") o norte denominada Bristol Condominio Apart Hotel de 18 pisos. El basamento ocupado por la Galería Bristol (incompleta) presenta una distribución de planta baja y tres niveles. El conjunto se completa con locales comerciales perimetrales y 550 cocheras, distribuidas en 3 subniveles. El hotel cuenta con 225 unidades habitacionales (entre habitaciones y departamentos), todas ellas son propiedad de la empresa Construir S.A. Las torres cambiaron su fisonomía externa, pasando del recubrimiento de vidrio pensado en el proyecto original, a los muros exteriores de mampostería y balcones de hormigón, que cubren las fachadas parcialmente.

Vista del Complejo Bristol Center. Desde este ángulo puede apreciarse la base de la nunca comenzada tercera torre. Imagen tomada en 2021.

 
  

A continuación se muestra la lista de torres de 20 plantas o más de todo el Microcentro (sectores 1 y 2), incluyendo aquellas que ya fueron descriptas en detalle

 

Identificación

Ubicación

N° plantas (sobre nivel de vereda)

Distribución de plantas

N° departamentos

Gulfi I

Stgo. del Estero 1921

20

17 pisos + 3 niveles del basamento (incluida PB)

102

Luchetti 52

Entre Ríos 2187

20

18 pisos + nivel terraza intermedio + PB (y 3 niveles de subsuelos)

90

Rivadavia

San Luis 1830

20

17 pisos (6 dobles + 5 simples) + 2 niveles del basamento + nivel terraza intermedio

134

Coliqueo

Av. Luro y Stgo. del Estero

21

20 pisos + PB y 2 subsuelos

153

Maral 33

Entre Ríos 2166

21

20 pisos + PB

320

Ex Banco Popular Argentino

Av. Independencia 1717

22

20 pisos (uno de planta reducida) + 2 niveles del basamento (y 2 de subsuelos)

100

Bristol Condominio Apart Hotel

San Martín 2150

22

18 pisos + 4 niveles del basamento (y 3 de subsuelos)

225 (1)

Dormar XIII

Moreno 2234

22

20 + 2 niveles del basamento (incluida PB)

160

Estrella de Mar

Diag. Alberdi 2336

22

18 pisos + 3 niveles del basamento + PB

144

Jáchal 19

Av. Luro 2369

23

18 pisos + 4 niveles del basamento + PB

143

Odeón

Entre Ríos 1808

23

20 pisos + 3 niveles del basamento (incluida PB) y 2 de subsuelos

200

Maral 48

Corrientes 1551

24

20 pisos + 3 niveles del basamento + PB y 2 subniveles

140

Jáchal 10

Diag. Alberdi 2378

24

21 pisos + 3 niveles del basamento (incluida PB) y 3 subniveles

84

Nogamar I

Corrientes 1575

25

22 pisos + 2 niveles del basamento + PB (y 2 niveles de subsuelos)

124

Eiffel (Galería de las Américas)

Córdoba 1737

25

22 pisos + 5 del basamento (incluyendo 3 niveles de subsuelos, PB de doble altura y varios entrepisos) + nivel terraza intermedio

178

Palacio Edén

Bolívar 2118

27

25 pisos + 2 del basamento (incluida PB) + 2 niveles de subsuelos

383 (2)

Florida I

Corrientes 1685

28

25 pisos + 2 del basamento (incluida PB) + nivel terraza intermedio

150

Bristol Center (torre B)

San Martín 2110

28

24 pisos + 4 niveles del basamento (y 3 de subsuelos)

323

Almería

Av. Luro 2237

29

26 pisos + 2 de remate (menor superficie) + PB y 4 niveles de subsuelo

274

 

(1): Son 225 unidades habitacionales (entre habitaciones y departamentos).

(2): Son 383 departamentos que se distribuyen en dos cuerpos, 275 en la placa alta (por calle Buenos Aires) y 108 en la placa baja (por Bolívar). 

Las torres: Edificio Gulfi I (Santiago del Estero y Belgrano) y Luchetti 52 (Entre Ríos y Av. Colón). Imágenes de 2008.

Las torres. Edificios Coliqueo (Santiago del Estero y Av. Luro) y Maral 33 (Entre Ríos entre Bolívar y Av. Colón). Imágenes de 2008.

Las torres. Edificios del Ex Banco Popular Argentino (Av. Independencia y San Martín) y Dormar XIII (Moreno y Entre Ríos). Imágenes de 2008.

Las torres. Edificio Estrella de Mar (Diagonal Alberdi entre Corrientes y Santa Fe). Imágenes de 2008 y 2021.

Las torres. Diagonal Alberdi entre Santa Fe y Corrientes. De derecha a izquierda, los edificios Jáchal 10 (en la esquina con Santa Fe), Estrella de Mar y Lieber (en la esquina de Corrientes). Imagen tomada en 2021.

Las torres. Edificios Jáchal 10 (Santa Fe y Diagonal Alberdi) y Jáchal 19 (Av. Luro entre Corrientes y Santa Fe). Imágenes de 2008.

Las torres. Edificio Maral 48 (Corrientes entre Diagonal Alberdi y Av. Luro). Imágenes de 2008 y 2021.

Las torres. Edificio Nogamar I (Corrientes y Av. Luro). Construido por la empresa Arturo y Francisco Soprano con proyecto y dirección del ingeniero civil David Soprano Dalea. Este edificio fue construido a fines de la década de 1970, como el resto de los edificios de la misma manzana: Lieber, Estrella de Mar, Jáchal 10, Jáchal 19 y Maral 48.

Las torres. Edificio Almería (construido a principios de la década de 1970). Ubicado en Av. Luro y Entre Ríos. Imágenes tomadas en 2008.

Solo estos 19 edificios suman más de 3400 departamentos. Para tener una idea de que efectivamente, esta tipología de viviendas es la más habitual de este barrio, podemos asegurar que existen también más de 200 edificios de entre 10 y 19 pisos distribuidos entre los dos sectores presentados del Microcentro. Tomando un promedio (bajo) de 6 o 7 departamentos por piso, tendríamos más de 15000 departamentos para sumar, y sin contar los edificios de menos de 10 plantas.

 

EXTRAS

En esta sección se presentan bienes no patrimoniales que no entran en las categorías habitualmente descriptas: casas criollas, modernas, chalets o edificios de departamentos. Se incluyen por tener valores históricos, artísticos, simbólicos o simplemente porque se pueden considerar casos curiosos.


Cine Nogaró: el último de los grandes cines de Mar del Plata

 

Cine Nogaró - La primera imagen fue aportada por Fernando Pianacci al blog del diario La Capital: “Fotos de Familia”, es una publicidad del Heraldo del Cinematografista de 1956. La segunda imagen fue aportada al mismo blog por Rubén Viaro (autor de un libro sobre la historia de los cines de Mar del Plata), el Cine Nogaró en sus primero años.

En la esquina de Corrientes y Av. Luro, frente al antiguo hotel del mismo nombre, se inauguró en agosto de 1957, el último de los grandes cines de Mar del Plata, con más de 2300 butacas distribuidas en 2 grandes niveles (plateas generales y pulman) y un nivel super-pullman (de menor superficie). Convirtiéndose efectivamente en el cine más grande de Mar del Plata.

 

Cine Nogaró – La primera imagen es de 1969, luego del incendio, ya como Cine Atlas. El Cine América fue inaugurado un año más tarde. La segunda fotografía corresponde a la sala original del Cine Nogaró. Ambas fotografías fueron aportadas al blog “Fotos de Familia” del diario La Capital de Mar del Plata, la primera por Simón Uriol, de la Colección de Registros Urbanos y la segunda por Rubén Viaro.

 

Once años después sufrió un gran incendio (1° de enero de 1968). El incendio comenzó cuando las luces del escenario tomaron contacto con los cortinados. Al abrir las puertas a la calle para permitir la salida del público, la entrada de aire a la sala hizo que el fuego se propagara rápidamente a los pisos superiores, llegando al techo del establecimiento. La destrucción fue casi total. Dos años después se inauguraban 2 nuevas salas (América y Atlas) que se usarían como cines y/o teatros. La estructura del último nivel quedó clausurada y sus butacas sirvieron para amoblar parcialmente al teatro Atlas.

 

Cine Nogaró – Imagen enviada por Alberto Saavedra al blog “Fotos de Familia”. El 1° de enero de 1968 el Cine Nogaró sufría un incendio muy importante.


Como todos los cines de grandes dimensiones, sufrió los embates de los cambios de sociales que sucedieron a partir de la aparición del VHS y otras formas de reproducción de cine casero. Las salas que pudieron continuar como cines tuvieron que reinventarse, por ejemplo, reducir la capacidad y adquirir nuevas tecnologías para competir con otros medios de reproducción que siguieron asomando: TV por cable, DVD y recientemente contenidos on-line. En definitiva, muchas de estas salas tuvieron que cerrar definitivamente, algunos convirtiéndose en teatros, en templos evangélicos o minimercados. 

Imagen actual del edificio que alberga los teatros Atlas y América. (2021).


 

Corredor Verde de plazoletas costeras

Dos conjuntos de plazoletas surgieron a partir de dos hechos históricos distintos, uno accidental y otro programado. El primer caso corresponde a las plazoletas que se encuentran entre la Av. Luro y la Diagonal Alberdi y desde Entre Ríos a la Av. Patricio Peralta Ramos. El origen de estas pequeñas plazoletas fue la desaparición (debido a un incendio) del edificio del Club Mar del Plata. Las dos plazoletas están separadas por la calle más corta de la ciudad de Mar del Plata: Julio Muñoz.

 

Edificio del Club Mar del Plata (donde hoy se encuentra la Plazoleta Hidelberg Ferrino). Colección Gotta. Aportada por Ignacio Iriarte al blog “Fotos de Familia”, del diario La Capital de Mar del Plata.


Imágenes de la plazoleta que quedó en el mismo lugar donde se ubicaba el edificio del Club Mar del Plata, tomadas de 2003.


La primera de ellas, más grande, corresponde exactamente al espacio físico que ocupara durante 51 años el edificio del Club Mar del Plata. (Ver su historia en la sección sobre la Comparación histórica de la Bahía Bristol). En 2013, la plazoleta recibió el nombre “Hidelberg Ferrino”, por Ordenanza N° 21262. Vale recordar que Hidelberg Ferrino fue un artista plástico nacido en Maipú, pero que a partir de sus 14 años vivió en Mar del Plata. Sus numerosas obras están diseminadas por muchos de los espacios públicos de la ciudad, entre ellas, el Monumento a Cervantes Saavedra (Plaza España), el Busto de Pedro Luro (Plaza San Martín), el Monumento a Alberdi (Plazoleta de los Pioneros, rotonda de la Diagonal Alberdi y Av. Patricio Peralta Ramos), La Fraternidad (rotonda de las Av. Colón y Champagnat), el Monumento al Inmigrante Vasco (Paseo Jesús de Galíndez), el Busto de Hipólito Yrigoyen (en la Diagonal Pueyrredon), Monumento a Martín Miguel de Güemes (Plaza homónima), el Monumento a Mariano Moreno (Plaza homónima) y el Monumento a Carlos Gardel (Diagonal Pueyrredon), entre otros. También hay obras suyas en muchas escuelas y en ámbitos privados.

 

Vista hacia el Sur tomada desde la misma plazoleta. Imagen de 2021.

La segunda plazoleta, de forma triangular, es un recorte urbano pequeño que lleva por nombre “Plazoleta Enrico Caruso”, nombre impuesto en 1995 por Ordenanza N° 9925.

 

Imagen extraída de Google Earth, donde mostramos ambas plazoletas. 1) Plazoleta Hidelberg Ferrino, 2) la pequeña plazoleta triangular Enrico Caruso. La segunda imagen, cartel emplazado en dicha plazoleta.


El otro conjunto de plazoletas está ubicado entre la calle Buenos Aires y la Av. Patricio Peralta Ramos, desde Moreno hasta la peatonal San Martín. Surgió por un proyecto que incluyó la demolición de la manzana 115, donde se construyó la Plaza del Milenio, y la transformación de una zona de estacionamiento vehicular en la Plazoleta de las Provincias. Completa este conjunto, otro recorte urbano de dimensiones pequeñas, denominado Plazoleta Centenario Automóvil Club Argentino.

 

Imagen del conjunto Plaza del Milenio – Plazoleta de las Provincias – Plazoleta Centenario Automóvil Club Argentino. Tomada en 2021.


El proyecto (de factura municipal) contemplaba una gran intervención urbana, para expandir las vistas de la Plaza Colón y al mismo tiempo tener una vista totalizadora del complejo de edificios proyectados por Bustillo (Casino y Hotel Provincial). Habían pasado varias administraciones municipales desde las primeras ideas para lograr este objetivo, pero la implicancia de la previa expropiación de la manzana 115, significaba un gran escollo económico para la municipalidad. Recién cuando se logró el apoyo provincial se pudo encarar el proyecto. (Ver la descripción de este proceso en la sección de Bienes Históricos Notables, de la parte 17 del Sector Microcentro 2, en la Comparación Histórica de la Bahía Bristol).

Plaza del Milenio (ex Manzana 115). Imagen tomada en 2021.


En el proyecto participó una comisión municipal integrada por el Arq. José Fiscaletti (representando al EMSUR), el arq. José Luis Castorina (Planeamiento y Obras Públicas), el Ing. José María Conte (Dirección de Vialidad) y en asesoramiento para explosivos el Ing. Ind. Julio Caballero. La demolición estuvo a cargo del Batallón de Ingenieros 601 de Campo de Mayo y el jefe operativo fue el Coronel Juan Martín Merediz. En la construcción de los diversos espacios de las plazoletas participaron agentes del EMSUR, el Departamento de Espacios Verdes, el Departamento de Conservación Urbana, el Vivero de la Laguna de los Padres, en la fuente participó la empresa Arquitectura del Agua (Buenos Aires), etc. 

Plaza del Milenio (ex Manzana 115). Imagen tomada en 2019.


La construcción de la Plaza de la manzana 115 demandó tres meses y medio. El resto de las plazoletas unos 50 días. La Plaza del Milenio (denominación original, pero nunca ratificada en ordenanzas) se inauguró el 1° de enero de 2000. Se compone de una fuente de aguas danzantes (hoy no funciona), de forma circular (unos 470 m2), ubicada en posición central dentro de la manzana y un diseño de paños parquizados y circulación peatonal materializada por veredas o solados en piedra (lajas riojanas y piedra Miracema).

En 2011, al cumplirse el 90 aniversario del nacimiento de Ástor Piazzolla, se inauguró una escultura en bronce del escultor Carlos Benavídez, artista plástico cordobés. En dicho acto estuvo presente la viuda del músico, Laura Escalada.

 

Escultura de Ástor Piazzolla, implantada en la Plaza del Milenio. Imágenes de 2021.

Escultura de Ástor Piazzolla, implantada en la Plaza del Milenio. Imágenes de 2021.


Los tres espacios verdes recibieron ejemplares de palmeras antiguas, la manzana 115 recibió ejemplares que estaban ubicados en el predio de la demolida Villa María (de Entre Ríos y Bolívar), las otras dos plazoletas recibieron ejemplares donados por vecinos. La municipalidad se encargó de los traslados y trasplantes de los distintos ejemplares.

La Manzana 116, Plazoleta de las Provincias, contiene una pequeña fuente donde se emplazó una Sirena cuyo origen había sido un conjunto escultórico ubicado en el Paso de la Explanada Sud, cerca de Cabo Corrientes (ver descripción del bien en Parte 15, Sector Microcentro 2, Sirena). Se completa con un busto de Humberto I y un conjunto de placas con los escudos provinciales. Por último, la manzana 117, denominada Plazoleta Centenario Automóvil Club Argentino, es el nexo con la Peatonal San Martín, continuando con el mismo diseño (pisos y paquizaciones) del conjunto.

 

Imagen del conjunto Plaza del Milenio – Plazoleta de las Provincias – Plazoleta Centenario Automóvil Club Argentino. Tomada en 2021.


'

(*) Todas las fotos del blog pertenecen a Oscar Casemayor, salvo las indicadas en pie de foto.

(*) Para ver las fuentes de información y bibliografía consultada para el desarrollo de los distintos posteos, deben dirigirse al primer hilo del blog.